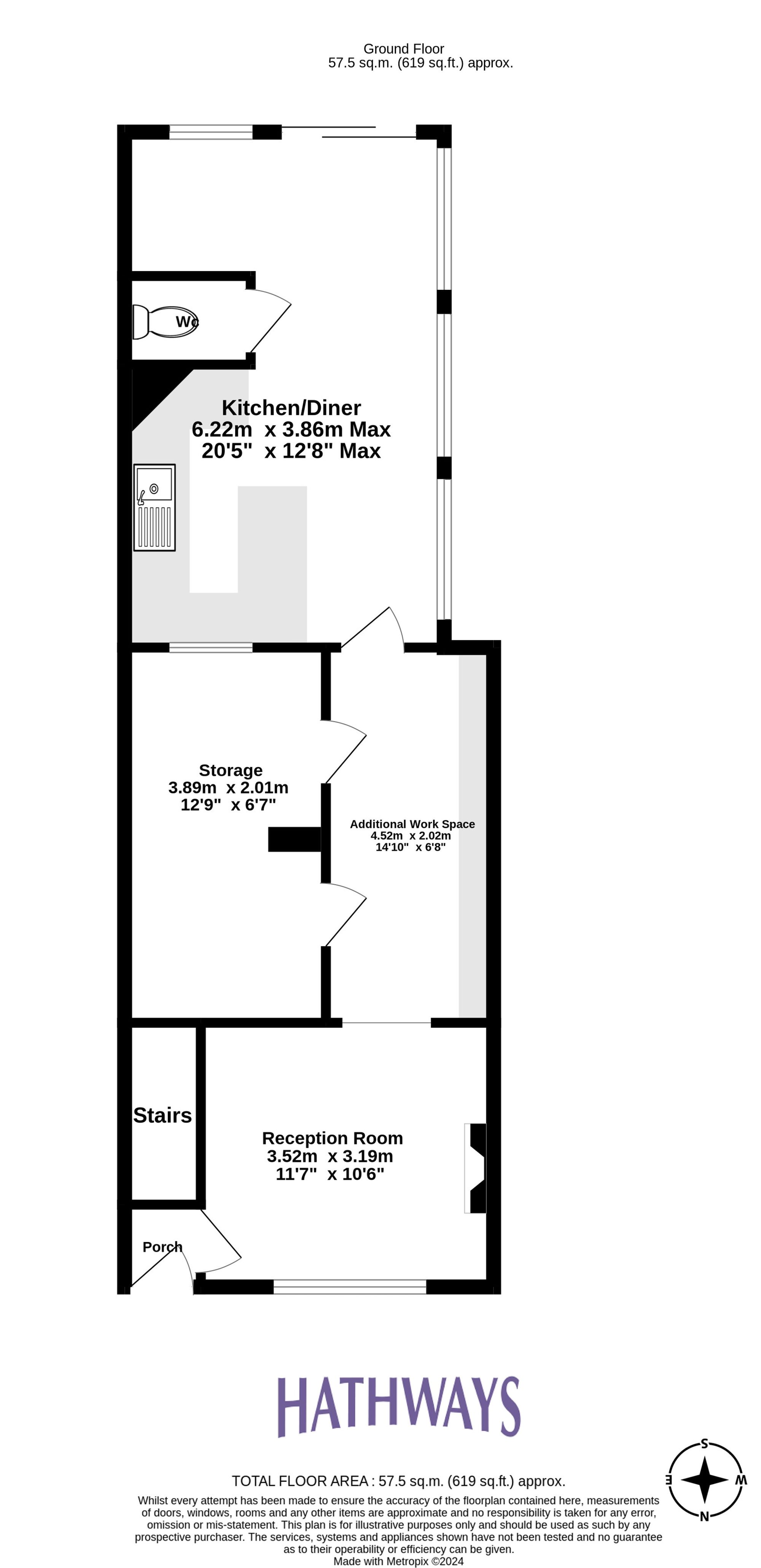
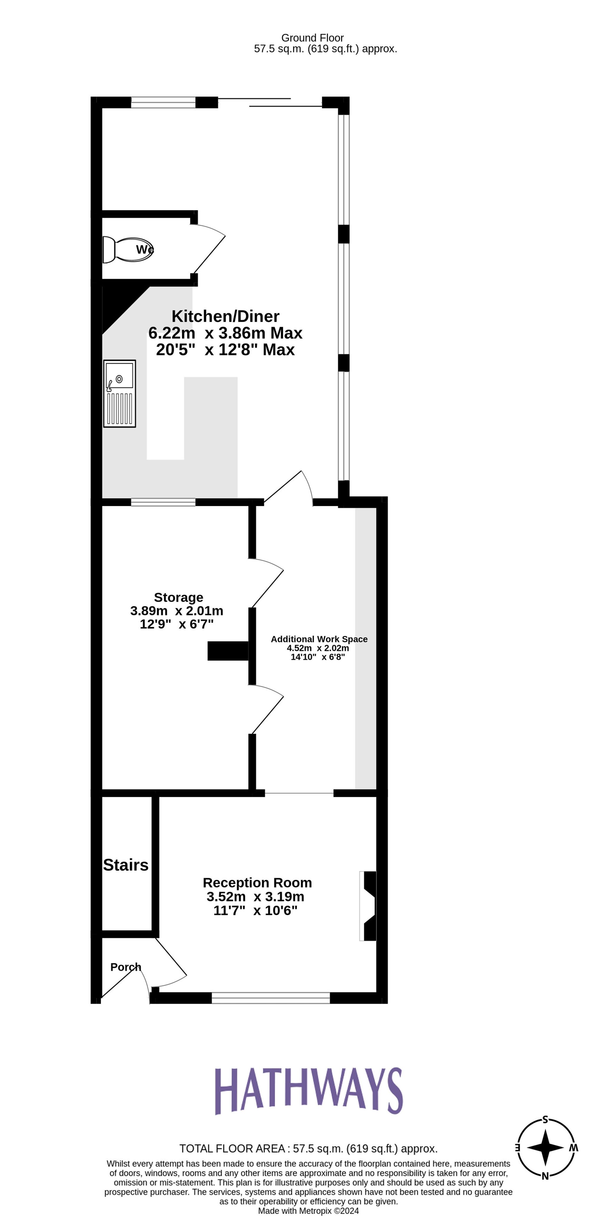
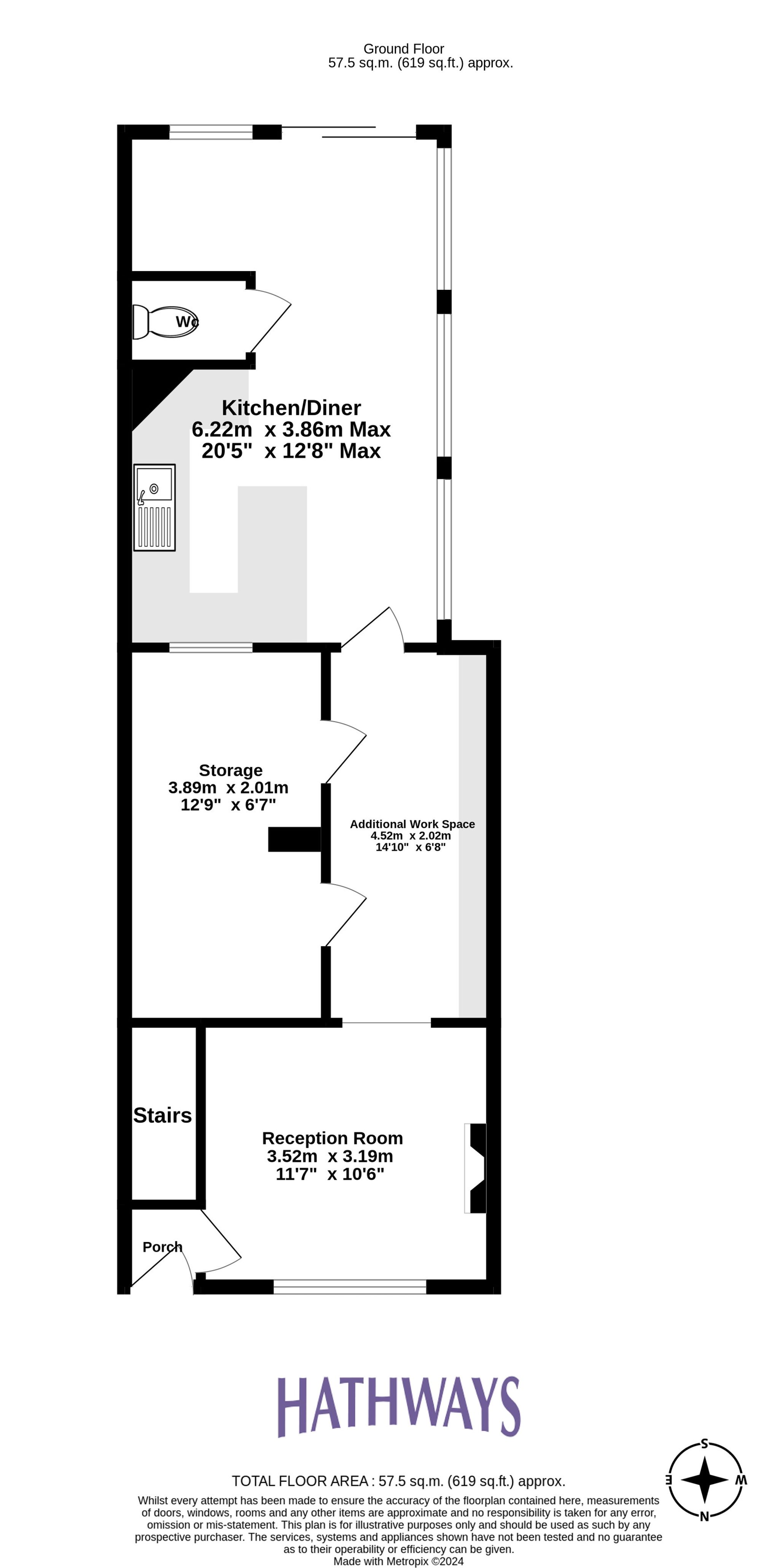
613.54 sq ft (57 sq m)
1679.17 acres
613.54 sq ft (57 sq m)
1679.17 acres
GUIDE PRICE £50,000 TO £70,000. HATHWAYS are please to offer for sale, this flexible and versatile terraced property, previously used as a dental laboratory situated in the popular village of Pontnewydd.
The property consists of a reception room, storage room, and a kitchen, offering the perfect canvas for customisation and refurbishment. With a rear garden providing outdoor space, this property is ideal for those looking to create a commercial space tailored to their vision or to re-instate as a residential property (subject to planning). Spanning a multitude of possibilities, this investment opportunity requires updating,
The property's location in Pontnewydd ensures access to a range of amenities and services, enhancing its appeal for both business owners and customers alike. Early internal inspection is highly recommended to fully appreciate the potential this terraced commercial property holds. Any change of use would be subject to a buyer obtaining the relevant planning permissions.
Early internal inspection is recommended.
Hathways are advised that the property currently has a rateable value of £3,350, and advised that the property is freehold, please be aware it is the buyer's responsibility to determine council tax band and tenure. With promising investment returns awaiting, all buyers are encouraged to seek legal representation and obtain professional advice prior to purchase.
Dentist (20 of 22)
50ACommercialStreetPontnewyddCwmbranNP441AE-High (1)
Dentist (17 of 22)
Dentist (15 of 22)
Dentist (16 of 22)
Dentist (18 of 22)
Dentist (11 of 22)
Dentist (13 of 22)
Dentist (14 of 22)
Dentist (10 of 22)
Dentist (9 of 22)
Dentist (5 of 22)
Dentist (8 of 22)
Dentist (7 of 22)
Dentist (12 of 22)
Dentist (1 of 22)
Dentist (4 of 22)
Dentist (3 of 22)
Dentist (2 of 22)
Dentist (19 of 22)
50a Cwmbran Dental Lab Title Plan
Cwmbran Leaflet





















