Plot for sale in Peterston-Super-Ely, Cardiff, CF5 (ref: 624665)
ShortlistKey Features
- Fantastic Opportunity To Acquire A Plot of Land
- Located In The Desirable Village Peterston-Super-Ely
- Stunning Unobstructed Views
- Freehold
- Perfect Investment
Hathways are pleased to present to market this very rare opportunity to purchase a Plot of Land in the sought after village of Peterston-Super-Ely. Situated in a picturesque setting, this unique piece of land boasts a prime location looking towards the Vale of Glamorgan, offering uninterrupted views that are simply breathtaking.
There are plans to build a 5 Bedroom, Detached house on a 1090sq metre plot. This fantastic opportunity comes with the advantage of no onward chain, ensuring a smooth and hassle-free transaction for the fortunate new owner. Whether you are looking to build your dream home or invest in a prime piece of real estate, this land holds immense potential for a variety of purposes and promises a lifestyle of exclusivity and serenity.
Properties in the area of Peterston-Super-Ely are priced at a premium, but this plot could be yours for just £305,000. This rare opportunity is not to be missed!
For further details or to arrange to view the plot, please contact Simon on 07909 694859.
Property Images

The Croft Peters Super Ely Plan -SW & SE ELAVATION

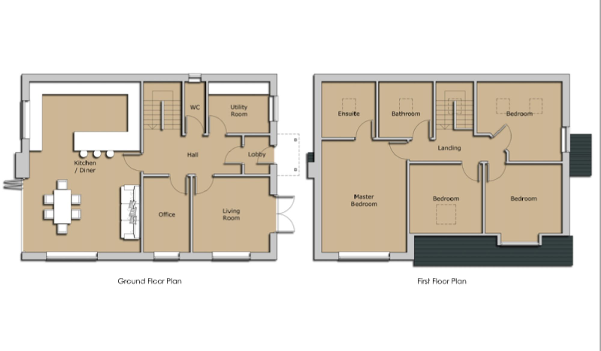
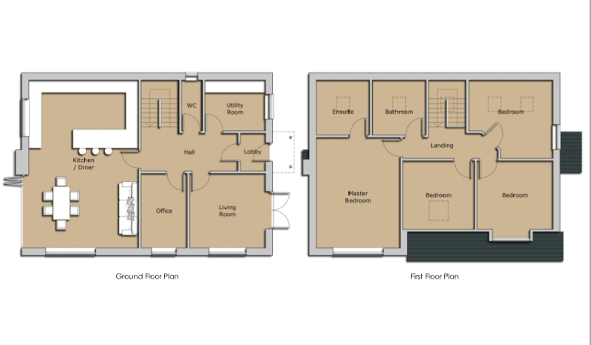
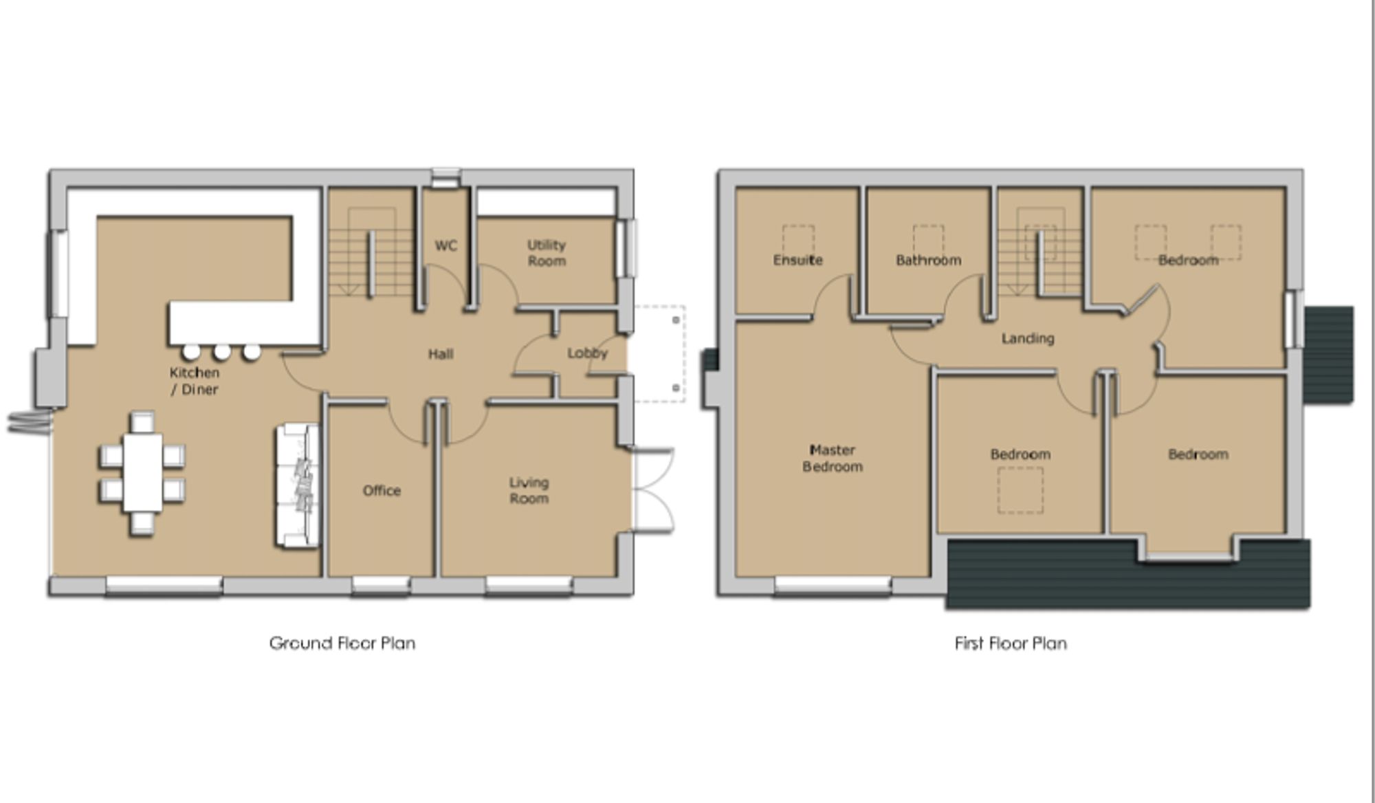
The Croft Peterson Super Ely - Floor Plans

The Croft Peterson super Ely Plan 1

The Croft Peter Super Ely -Title Plan
Plot new
Entrance
Plot 3 new
Plot 2 new

The Croft Peterson Super Ely 1

The Croft Peterson Super Ely 2
Further Details
- Status: Sold STC
- Council Tax Band: G
- Reference: 624665










