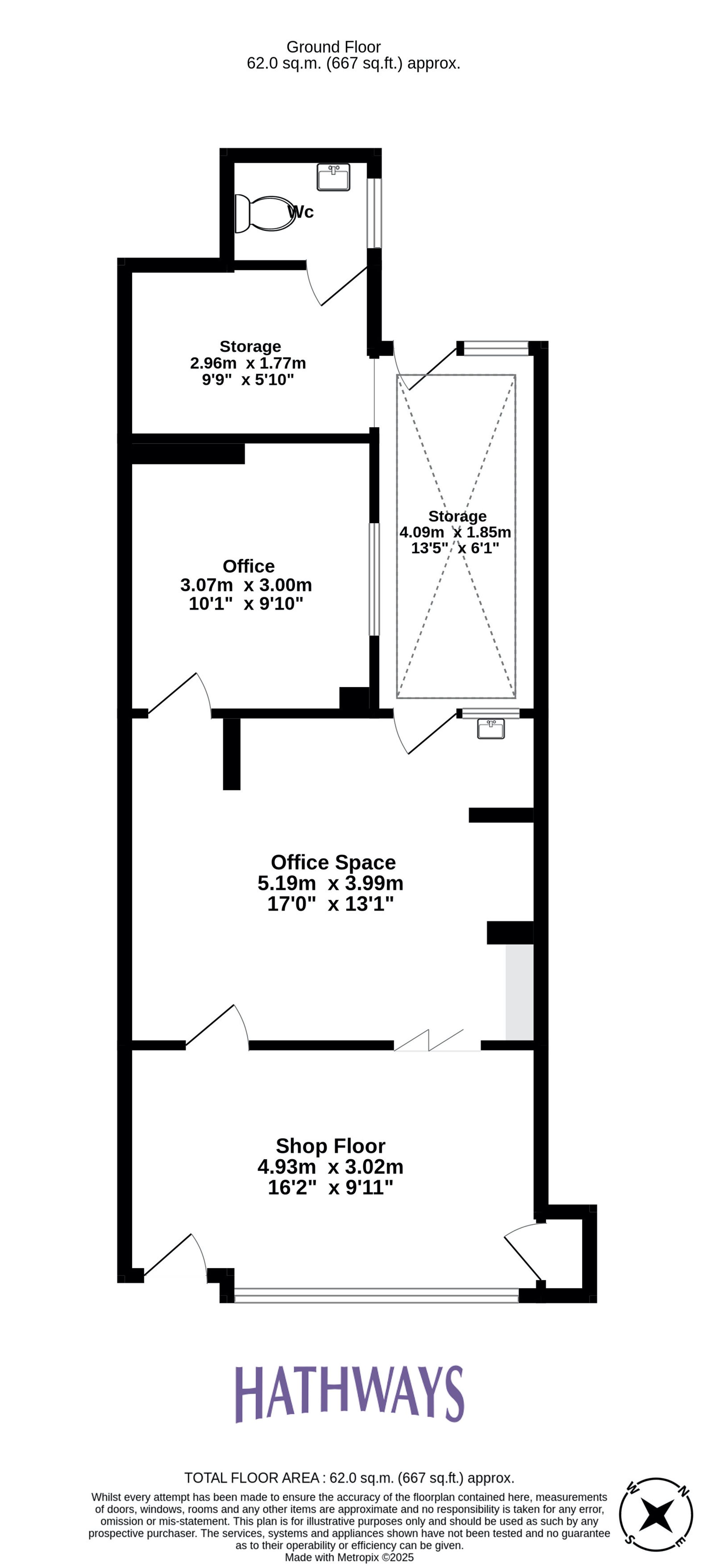
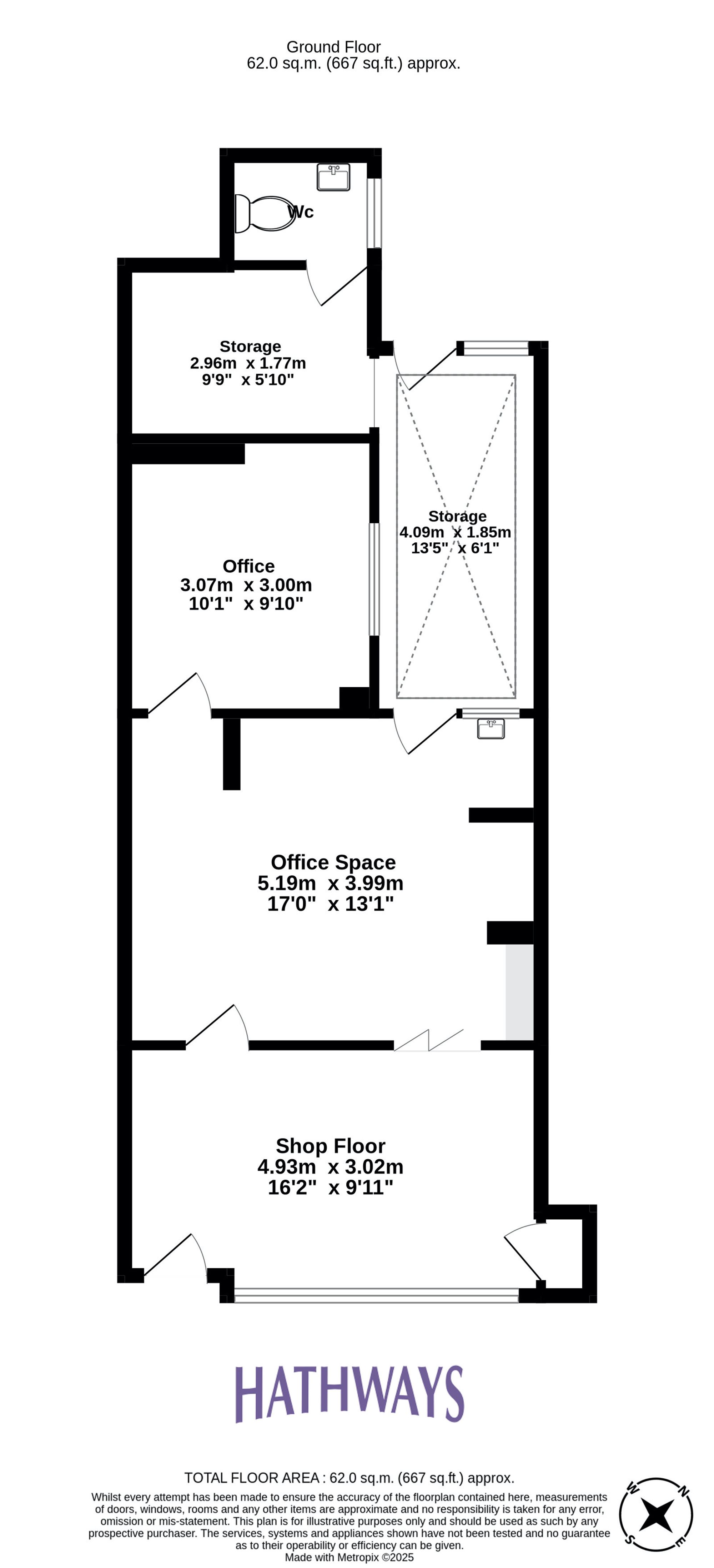
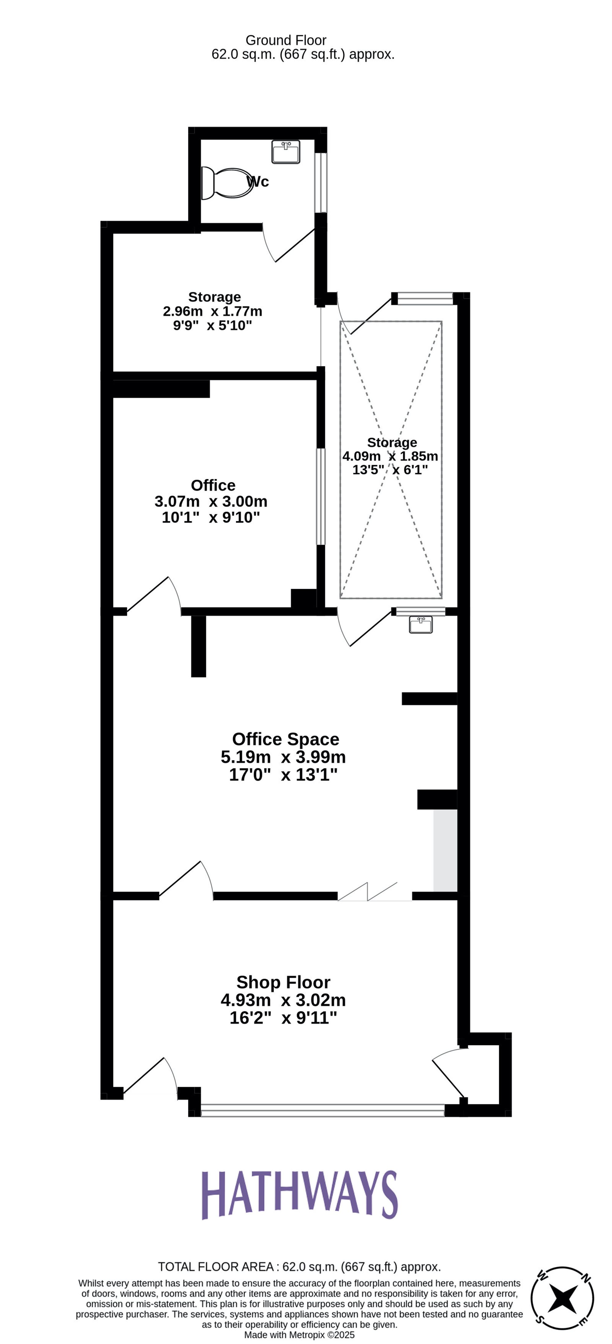
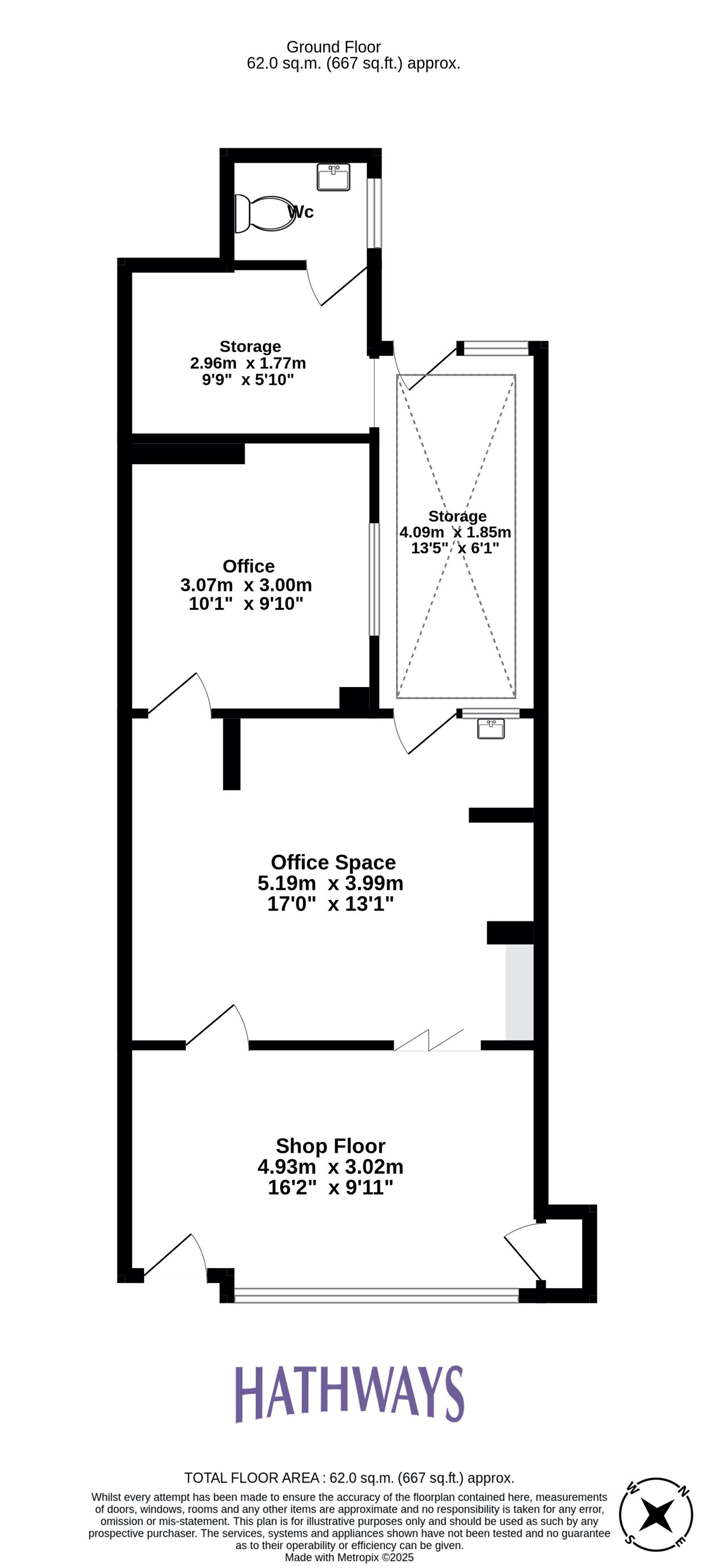
667.36 sq ft (62 sq m)
1410.07 acres
667.36 sq ft (62 sq m)
1410.07 acres
OFFERS IN THE REGION OF £50,000. HATHWAYS are pleased to present this flexible and versatile commercial premises, ideally situated in the heart of bustling Griffithstown, and offering a unique investment opportunity for business owners. 
The property boasts a welcoming shop front/reception room leading to two separate office rooms, along with two further storage rooms and a convenient WC. The enclosed rear garden space, a rare find for commercial properties, offers the perfect space for outdoor meetings or staff breaks. Additionally, a detached garage at the rear provides practical storage and parking solutions. With no onward chain, this property presents a great investment opportunity for those looking to establish or expand their business presence in this bustling area.
Furthermore, the property's location provides convenience with access to major road networks, ensuring easy commuting for employees and clients. Local amenities within walking distance cater to daily needs, enhancing the practicality of this commercial property. Early internal inspection of this property is highly recommended to fully appreciate the potential it offers for business endeavours.
Whilst Hathways are advised that the property is registered as freehold, please be aware it is the buyer's responsibility to determine council tax band and tenure. All buyers are encouraged to seek legal representation and obtain professional advice prior to purchase.
Shop Floor
Office 1
Office 2
Storage Room 1
Storage Room 2
WC
00 (3) (16)
10WindsorRoadGriffithstownNP45HY-High (2)
01 (2) (45)
01 (3) (31)
01 (1) (45)
02 (2) (58)
02 (1) (58)
02 (3) (50)
02 (4) (50)
03 (2) (56)
03 (4) (44)
03 (3) (51)
03 (1) (57)
04 (2) (53)
04 (1) (55)
04 (3) (45)
05 (1) (53)
05 (2) (56)
06 (1) (50)
06 (3) (40)
07 (1) (52)
WhatsApp Image 2025-09-12 at 11.13.09
08 (16)
WhatsApp Image 2025-09-12 at 11.13.09 (2)
WhatsApp Image 2025-09-12 at 11.13.09 (3)
WhatsApp Image 2025-09-12 at 11.13.09 (4)
10 Windsor Road Title Plan


























